A New Chapter Unfolds: Phase 5 of Kingsgrove Approved

A New Chapter Unfolds: Phase 5 of Kingsgrove Approved

Kingsgrove has seen significant progress recently, with the Vale of White Horse District Council granting approval for Phase 5 of St. Modwen’s development in Wantage.

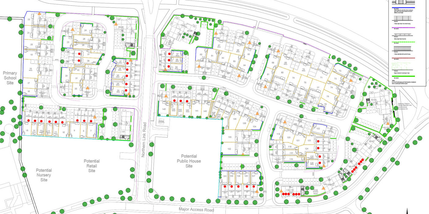
This phase will involve the construction of 145 dwellings on the north east parcel of the site, 43 of which will be affordable housing. There will be a full range of housing available in this phase, from one-bed apartments to five-bed houses, and all homes will have some private outdoor space, whether it is a garden or a balcony. There will also be new landscaping across the area, with hedges, trees and low-level shrubs forming boundaries.

Kingsgrove has always been about a strong emphasis on promoting sustainable transportation options. While parking will be provided for each dwelling, cycle storage facilities will also be provided for each house, as well as new pedestrian access onto the main roads and the local centre, to encourage residents to opt for more eco-friendly modes of transportation.

This approval has been granted at the same time as the approval for the exciting new Community Hub in Kingsgrove, further enhancing the area’s growth and potential for a thriving community. The proposals went through a thorough consultation process, with the final plans taking into account helpful comments from the housing development team, waste management team, the police design advisor, and the countryside, tree, and landscape officers.

For any questions, please email community@kingsgrovewantage.co.uk or to view the full planning application, click here.

Application number: P22/V1910/RM